Aktuelles Mietangebot
Smarte Wohnung mit Dachterrasse in 26131 Oldenburg / Eversten
Oldenburg / Eversten
Smarte 2 Zimmer-Wohnung mit schöner Dachterrasse

Die Eckdaten:
- gute Wohnlage in Oldenburg / Eversten
- Wohngebäude mit 3 Wohneinheiten pro Stadthaus aus dem Baujahr 2025
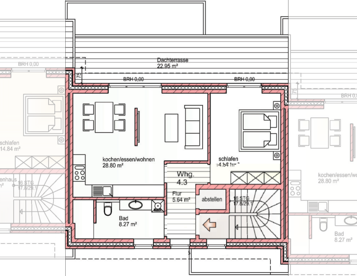
- ca. 66 m² Wohnfläche
- 2 Zimmer, Bad, Flur, HWR
- ca. 23. m² große Dachterrasse (zu 1/4 in Wfl. eingerechnet)
- PKW-Stellplatz
- Einbauküche
- Abstellschuppen
- Neuvermietung ab 01.06.2026 (Whg. 1.3) bzw. 01.07.2026 (Whg. 3.3)
- Mietpreis (kalt): 940 € / Monat
- + Küchennutzung: 50 € / Monat
- + PKW-Stellplatz: 25 € / Monat
- + Betriebskosten: 100 € / Monat
- + Heizung / Strom: 75 € / Monat
- + Wasser: 12,50 € / Person

Der Grundriss:

Interaktiver Lageplan:
Der Grundstücksplan:

˄ Ansicht der Gartenseite


˄ Ansicht der Hofseite
360°-Rundgang mit Grundriss:
Der Energieausweis:
- Art des Energieausweises: Verbrauchsausweis
- Erstellungsdatum: 28.06.2025
- wesentlicher Energieträger: Strom für Wärmepumpe
- Endenergiebedarf: 13,8 kWh/(m²∙a)
Energieeffizienzklasse: A+

.
.
Kontaktieren Sie mich
RICHARD HEYEN
Diplom Ökonom, Immobilienmakler seit 1995
Telefon: 0441 96 97 20 60
Mobil: 0177 4 855 822
E-Mail: info@heyen-immobilien.de
Anschrift: 26135 Oldenburg, Huntestraße 14a

