KAUFANGEBOTE
Neubau-Wohnungen in 26203 Wardenburg
.
.
.
.
.
.
.
.
.
.
.
.
.
.

Die Eckdaten:
- sehr zentrale Wohnlage in 26203 Wardenburg
- 1.894 m² Grundstück
- das neue Wohn- und Geschäftshaus beinhaltet folgende Einheiten
- 14 Wohnungen
- 2 oder 3 Zimmer
- ca. 68 m² bis ca. 91 m² Wohnfläche
- Zur umfangreichen Ausstattung gehören:
- Terrasse oder Balkon
- Einbauküche
- Fußbodenheizung
- eletr. Rollläden
- Lüftungsanlage
- je 1 PKW-Stellplatz pro Wohnung
- Fahrstuhl
- Fahrrad-Schuppen
- QNG-Baustandard
- Kaufpreise von 299.500 € bis 438.500 €
- 1 Büro- / Ladenfläche
- ca. 140 m² Fläche
- aufteilbar in bis zu 4 Einheiten
- Kaufpreis auf Anfrage
- 14 Wohnungen
- Es wird eine Käufercourtage in Höhe von 3,57 % erhoben
Die Gebäude-Ansichten:
Von der Vision zum neuen Zuhause:
Das 1.894 m² große Grundstück, sehr zentral gelegen:

Der interaktive Lageplan:
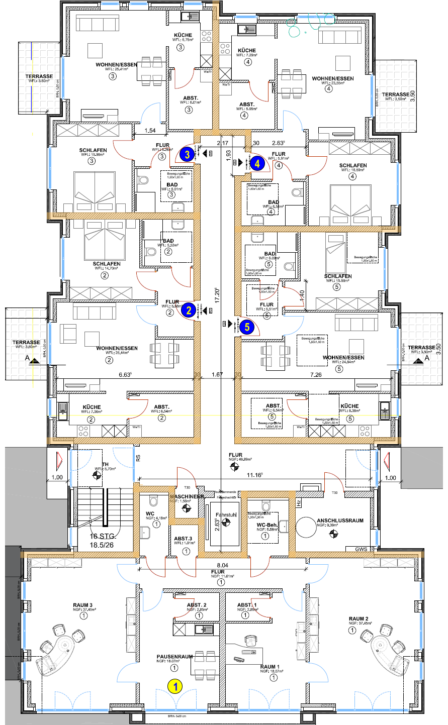
Das 1. Obergeschoss:
Die einzelnen Einheiten im 1. Obergeschoss:
6. Wohnung mit 3 Zimmer und ca. 86,48 m² Wohnfläche
7. Wohnung mit 2 Zimmer und ca. 71,11 m² Wohnfläche
8. Wohnung mit 2 Zimmer und ca. 68,45 m² Wohnfläche
9. Wohnung mit 2 Zimmer und ca. 67,93 m² Wohnfläche
Das 2. Obergeschoss:
Die Gebäudeansichten:

˄ Die Straßenansicht

˄ Die Nordansicht

˄ Die Westansicht

˄ Die Ostansicht
Die Gebäudestruktur:

360°-Rundgang [WE 12]:
Ein 360°-Rundgang, hier: Wohnung 12 im 2. Obergeschoss [Stand: 09.03.2026]
360°-Rundgang [WE 13]:
Ein 360°-Rundgang, hier: Wohnung 13 im 2. Obergeschoss [Stand: 09.03.2026]
360°-Rundgang [WE 15]:
Ein 360°-Rundgang, hier: Wohnung 15 im 2. Obergeschoss
Der Energieausweis (in Vorbereitung):
- Art des Energieausweises: Bedarfsausweis
- Erstellungsdatum:
- wesentlicher Energieträger:
- Endenergiebedarf: kWh/(m²∙a)
Energieeffizienzklasse:

.
.
Kontaktieren Sie mich
.

RICHARD HEYEN
Diplom Ökonom, Immobilienmakler seit 1995
Telefon: 0441 96 97 20 60
Mobil: 0177 4 855 822
E-Mail: info@heyen-immobilien.de
Anschrift: 26135 Oldenburg, Huntestr. 14a










































