Aktuelles Kaufangebot
Stilvolles 3-Parteien-Wohnhaus in Alt-Osterburg
Oldenburg / Alt-Osternburg
Historisches Wohnhaus mit 3 Wohneinheiten Nähe Hunte

Die Eckdaten:
- innenstadtnahe Wohnlage in Oldenburg / Alt-Osternburg
- 3-Parteien-Wohnhaus aus dem Baujahr 1895 (Denkmalschutz)
- 380 m² Grundstück
- ca. 293 m² Wohnfläche inkl. Souterrain
- in 2023 + 2024 professionell begleitete und durchgeführte Sanierungen inkl. Foto-Dokumentation (Investitionsvolumen in Höhe von ca. 150,000 €):
- Gebäudesockel (siehe weiter unten)
- Fassadenverbesserungen
- Heizkessel inkl. Leitungen und Schornsteinrohr neu
- Souterrain
- Balkone
- Elektroarbeiten
- Malerarbeiten
- Kaufpreis: 789.500 €
- Käufercourtage: 3 % inkl. MwSt.
Interaktiver Lageplan:
Bildergalerie:
HINWEIS:
Die hier gezeigten Fotos wurden mit KI-basierter Software in der Weise bearbeitet, dass lediglich die zuvor darauf ersichtlichen Personen, Fahrzeuge und Wertstoffbehälter entfernt wurden.
Die Gebäudestruktur:
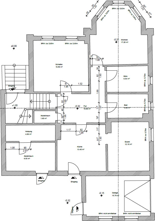
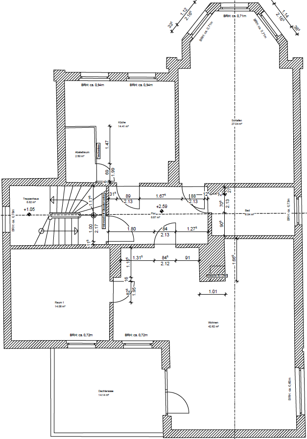
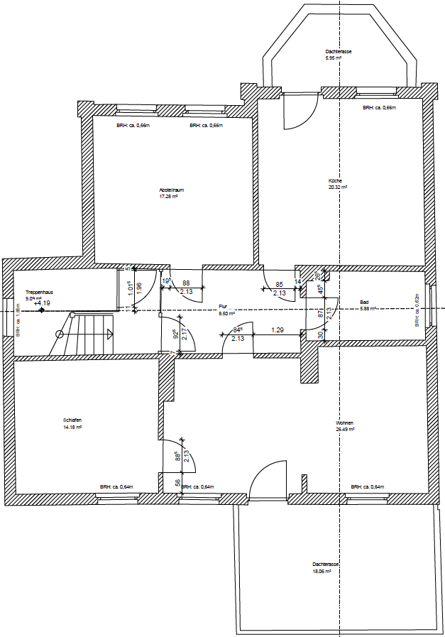
Das Raumprogramm:
3D-Grundrisse:
Die Flächenzusammenstellung:

Ein kleiner Einblick in die Sanierungsarbeiten der letzten Jahre, hier: Gebäudesockel-Sanierung:
360°-Rundgang (in Vorbereitung):
Der Energieausweis:
- Art des Energieausweises: Bedarfsausweis
- Erstellungsdatum: 27.02.2026
- wesentlicher Energieträger: Gas
- Endenergiebedarf: 317,1
Energieeffizienzklasse: H

.
Kontaktieren Sie mich
RICHARD HEYEN
Diplom Ökonom, Immobilienmakler seit 1995
Telefon: 0441 96 97 20 60
Mobil: 0177 4 855 822
E-Mail: info@heyen-immobilien.de
Anschrift: 26135 Oldenburg, Huntestraße 14a





















