∙
Kompaktes Wohnhaus in Oldenburg / Bürgerfelde
KAUFANGEBOT
∙
.
.
.
.
.
.
.
.
.
.
Die Eckdaten:
- gute Wohnlage in 26127 Oldenburg / Bürgerfelde (Nähe Bürgerbusch);
- 434 m² Grundstücksfläche
- Baujahr 1960 (Bungalow + Garage), Aufstockung in 1999, Sanierung in 2011
- 3 Zimmer, Gäste-WC im EG mit Dusche, Bad im DG mit Dusche und Wanne;
- 107 m² Wohnfläche + (Teil)Keller
- großzügige Garage (3,96 m x 5,46 m = 21,62 m²)
- Brennwert-Heizkessel aus 2014
- Gebäude ist geeignet zum Betrieb einer Wärmepumpe, ein entsprechende Wärmepumpenprojektierung liegt vor
- Einbauküche;
- Rollläden, teilweise mit elektr. Antrieb
- Kaufpreisvorstellung der Eigentümer: 399.500 €
- Käufercourtage: 3 % inkl. MwSt.
Fotogalerie:
Der interaktive Lageplan:
Das Grundstück:

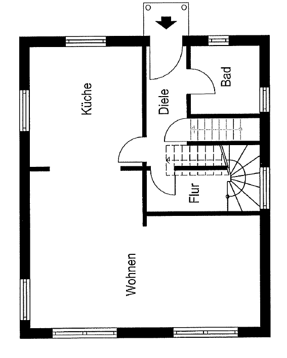
Die 3D-Grundrisse:
Der 360°-Rundgang:
Der Energieausweis:
- Art des Energieausweises: Bedarfsausweis
- Erstellungsdatum: 11.11.2024
- wesentlicher Energieträger: Gas
- Endenergiebedarf: 114 kWh/(m²∙a)
Energieeffizienzklasse: D

.
.
.
Kontaktieren Sie mich

RICHARD HEYEN
Diplom Ökonom, Immobilienmakler seit 1995
Telefon: 0441 96 97 20 60
Mobil: 0177 4 855 822
E-Mail: info@heyen-immobilien.de
Anschrift: 26135 Oldenburg, Huntestr. 14a

















